Категория: Рудничные рельсы

Рудничные рельсы Р-43

В наличии на складе Цена по запросу
Отправить запрос
Тип:Новый
Новый Б/У СГ
Тип рельсаР-43
Вид, назначениежелезнодорожные, рудничные
Состояниеновые, б/у
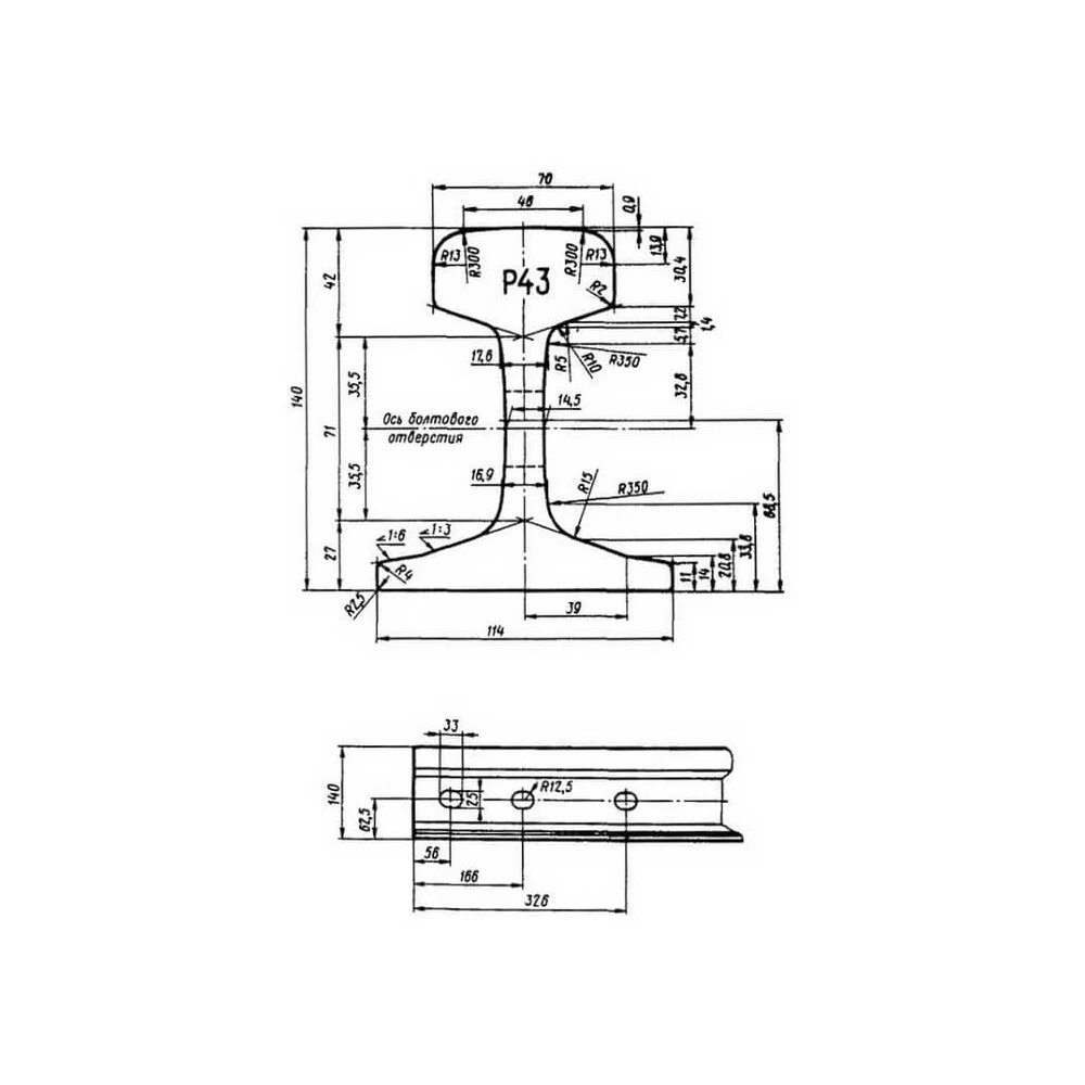
Длина12500 мм
Ширина140 мм
Высота114 мм
Ширина головки70 мм
Толщина шейки14,5 мм
Высота шейки71 мм
Высота пера подошвы11 мм
Мерная длина12,5 и 25 м
НЕмерная длина6-25 м
Вес метра44,65 кг
Метров в 1 тонне22,4 м
Масса рельса длинной 12,5 метров558 кг
ГOCT, TУГOCT 7173-75
Материалуглеродистая сталь
Единица измерениятонна

Среднее время доставки по Свердловской области: 7-10 дней

Наши логисты свяжутся с вами для уточнения деталей доставки

Рельсы Р43 применяются при строительстве железнодорожных путей широко колеи, способны выдерживать большие статические нагрузки что позволяет их использовать на предприятиях тяжелой промышленности, и для строительства объездных и разгрузочных путей. Рельсы Р-43 являются прямолинейными и в соответствии с ГОСТом 7173-75, имеют минимальное отклонение не превышающие 3мм на метр длины. Рельсы Р43 продаются в основном стандартной длины это 12,5 метров, но можно приобрести и не стандартных размеров от 6 до 25 метров. Рельсы изготавливаются из слитков, слитки могут состоять из разной стали. В основном используется мартеновская сталь М76Ф,М76, и электропечной Э76Ф, Э76ХСФ, Э76. Рельсы могут быть термообработанными для увеличение прочности при статической нагрузке, при падение груза термообработанные рельсы выдерживают падение 1 тонны с высоты 4 метров не деформируясь, а не обработанные выдерживают с высоты более 7,5 метров.

ГOCT 7173-75 рельс Р43

На нашем сайте вы можете скачать ГOCT 7173-75 для рудничных рельс Р-43 —изображение

Пример расшифровки обозначения рельс Р43-2-12,5 ГОСТ 7173-75/ДСТУ 2539-94:

  • тип/марка рельса;
  • 3/2 три болтовых отверстия на обоих концах рельса.
  • мерная длина в метрах;
  • по данному ГОСТу производятся в России;

Чертеж/схема рельса типа Р-43

чертеж рудничных рельс Р-43

Купить рельсы Р-43 просто достаточно оставить заявку у нас на сайте, или позвонить по телефону. Мы подберем наиболее удобный вам вариант по цене и доставки, ответим на все интересующие вас вопросы и выставим при необходимости счет. Покупаю Рельсы Р43 в компании Трансмет вы будете уверенны что будет высокое качество и оптимальные цены. Мы отправляем продукцию по все России, поэтому даже в другом регионе вы получите необходимое количество рельс вовремя.

Оплата и доставка продукции

Мы предлагаем свои услуги по доставке различных грузов для железных дорог, включая железнодорожные рельсы, шпалы и другие строительные материалы.

Мы обладаем собственным транспортом, который позволяет нам осуществлять доставку грузов быстро, качественно и в срок. Наша компания осуществляет доставку продукции по всей территории России и ближнего зарубежья.

Варианты доставки

  • Доставка автотранспортом по РФ.
  • Доставка железнодорожным составом.
  • Отправка ТК по запросу. Мы сотрудничаем со всеми сертифицированными транспортными компаниями.

Наша компания заботится о комфорте и безопасности клиентов, поэтому мы предлагаем различные виды транспорта для доставки. Не важно, нужно ли вам доставить грузы на большой расстояние или через город, мы предоставим вам наилучшее решение для вашего бизнеса.

624002, Россия, Свердловская область, г. Арамиль, ул. Гарнизон, 3В